貸事務所 長野県岡谷市田中町2丁目1-2 ナカミチビル B
- 賃料7.7万円
- 共/礼/敷なし/なし/1ヶ月
- 保証金なし
- 専有面積 38.61m² / 11.67坪
最終更新日 2025年11月29日
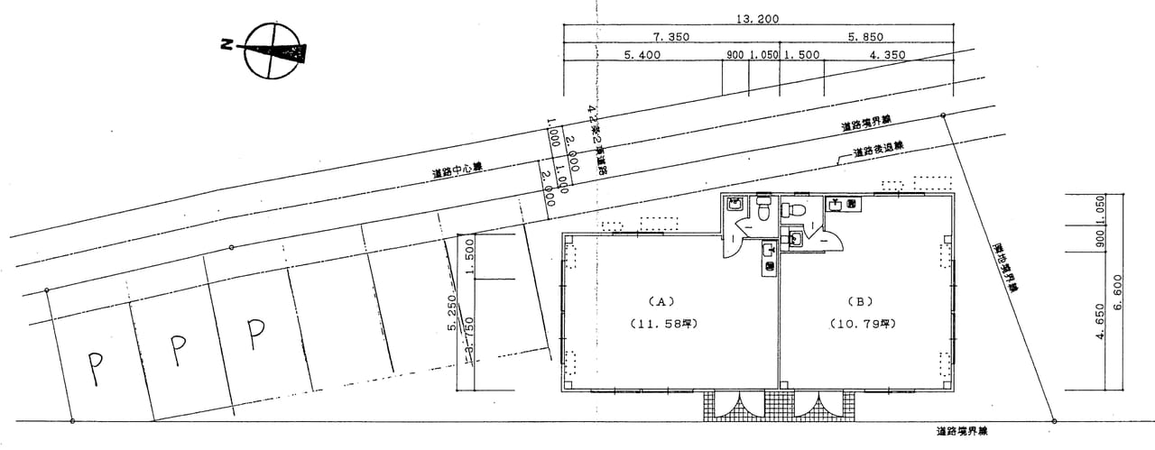
1棟に2テナントが入れるビルです。
岡谷不動産商事(有)
0266-22-3296
ココスマを見てとお伝えください
地図・周辺環境
※物件位置が表示されていない場合があります。
また特に外部リンク先のGoogleマップでは、実際とは異なる位置が表示される場合があります。
物件の正確な位置は必ず取扱い会社へお問合せください。
岡谷不動産商事(有)
0266-22-3296
ココスマを見てとお伝えください
物件詳細
| 賃料 | 7.7万円 |
|---|---|
| 礼金 | なし |
| 敷金 | 1ヶ月 |
| 共益費 | なし |
| 専有面積 | 38.61m² / 11.67坪 |
| 所在地 | 岡谷市田中町2丁目1-2 |
| 建物名 | ナカミチビル B |
| 交通 | 電車:中央本線岡谷駅 距離1080m 高速道路:長野道 岡谷I.C. 車10分 |
| 備考 | 媒介手数料は7万円と消費税です。火災保険に加入をお願いします。1年18,500円から。 |
| 建物構造 | 木造 |
| 建物概要 | 地上1階 1階部分 |
| 駐車場 | 有 無料 台数:3台あり |
| 完成年月 | 1997年 |
| 保証金 | なし |
| 設備 | トイレ・給湯 |
| 取引態様 | 媒介 |
| 手数料 | 手数料必要 |
| 引渡し/入居日 | 相談 |
| 管理番号 | 5001000380B |
| 物件番号 | 33189 |
| 最終更新日 | 2025-11-29 |




















