貸店舗 長野県岡谷市本町4丁目6番5号 サカニシビル
- 賃料25万円
- 共/礼/敷-/なし/1ヶ月
- 保証金なし
- 専有面積 563.88m² / 170.57坪
最終更新日 2026年03月10日
テナントの業種により改装は相談となります。
岡谷不動産商事(有)
0266-22-3296
ココスマを見てとお伝えください
地図・周辺環境
※物件位置が表示されていない場合があります。
また特に外部リンク先のGoogleマップでは、実際とは異なる位置が表示される場合があります。
物件の正確な位置は必ず取扱い会社へお問合せください。
岡谷不動産商事(有)
0266-22-3296
ココスマを見てとお伝えください
物件詳細
| 賃料 | 25万円 |
|---|---|
| 礼金 | なし |
| 敷金 | 1ヶ月 |
| 専有面積 | 563.88m² / 170.57坪 |
| 所在地 | 岡谷市本町4丁目6番5号 |
| 建物名 | サカニシビル |
| 交通 | 電車:中央本線岡谷駅 距離1000m 徒歩13分 自動車5分 高速道路:長野道 岡谷I.C. 車8分 |
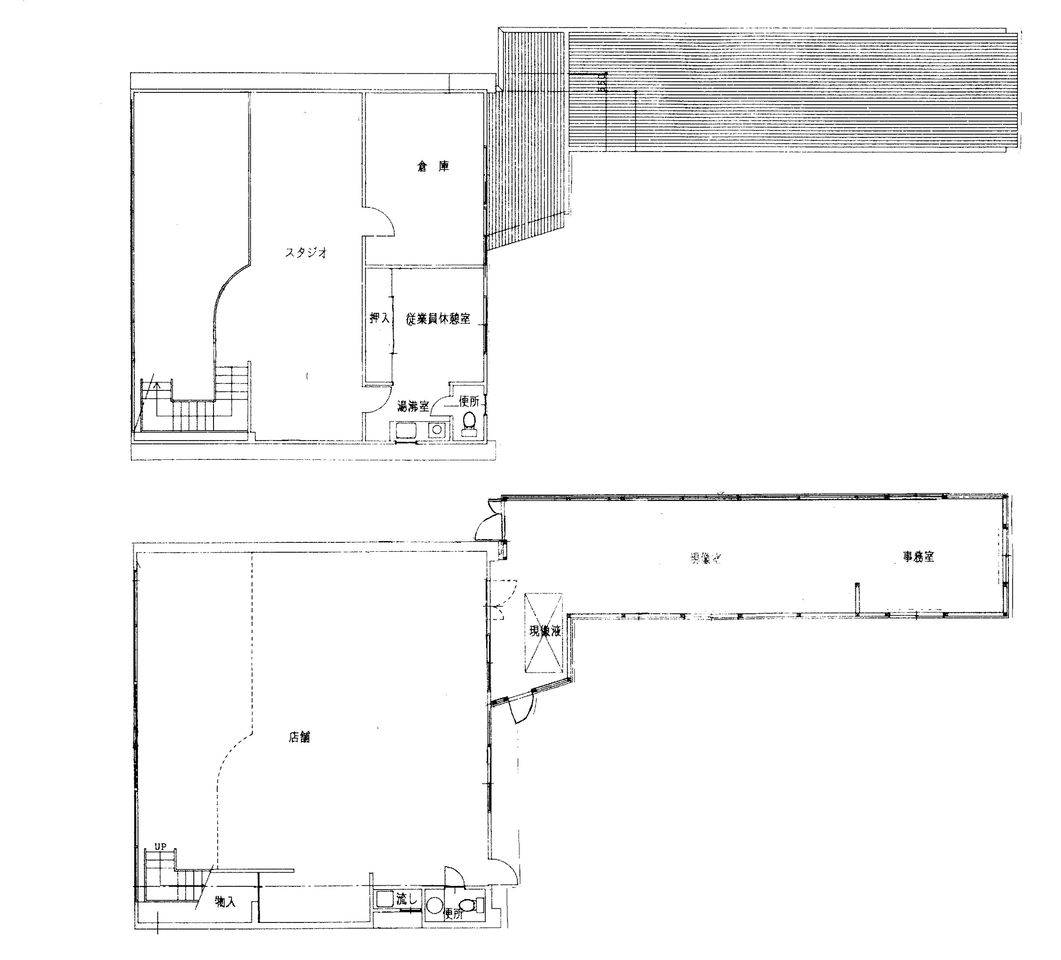
| 備考 | 現在はスケルトンに近い状態となっています。 |
| 建物構造 | 鉄骨造 |
| 建物概要 | 地上2階 |
| 駐車場 | 有 |
| 完成年月 | 1996年 |
| 保険 | 宅建ファミリー共済保険 金額 18500円/2年 |
| 保証金 | なし |
| その他一時金 | なし |
| 契約期間 | 2年 |
| 設備 | トイレ・収納スペース |
| 取引態様 | 媒介 |
| 手数料 | 手数料必要 |
| 引渡し/入居日 | 相談 |
| 物件番号 | 449497 |
| 最終更新日 | 2026-03-10 |

























































