貸店舗 長野県岡谷市長地源2丁目6番44号 矢崎ビル
- 賃料30万円
- 共/礼/敷込み/なし/1ヶ月
- 保証金なし
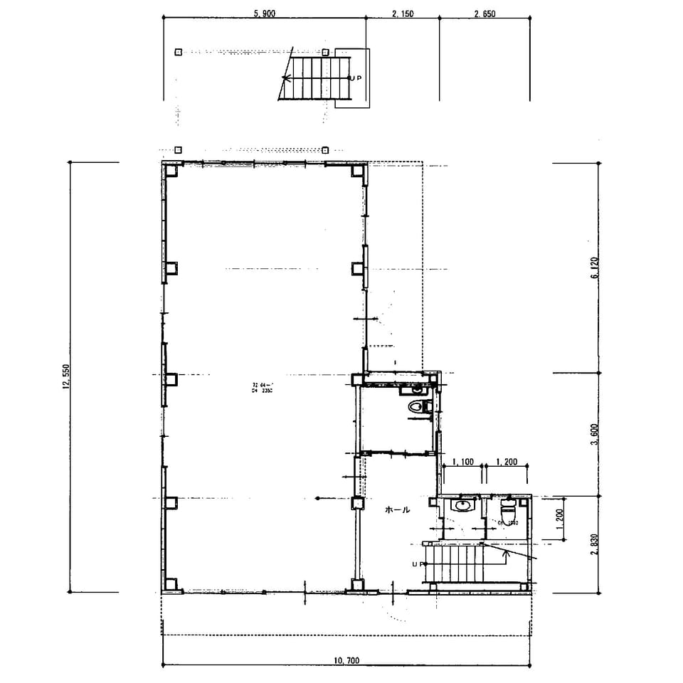
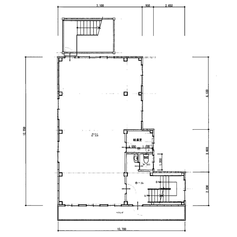
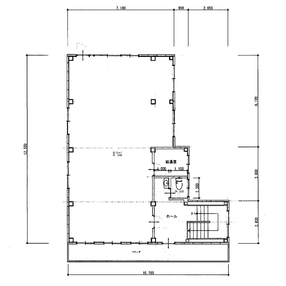
- 専有面積 258.17m² / 78.09坪
最終更新日 2026年04月23日
1棟と附属建物の全部貸となります。内見はご予約をお願いします。現地集合の内見が可能です。
岡谷不動産商事(有)
0266-22-3296
ココスマを見てとお伝えください
地図・周辺環境
※物件位置が表示されていない場合があります。
また特に外部リンク先のGoogleマップでは、実際とは異なる位置が表示される場合があります。
物件の正確な位置は必ず取扱い会社へお問合せください。
岡谷不動産商事(有)
0266-22-3296
ココスマを見てとお伝えください
物件詳細
| 賃料 | 30万円 |
|---|---|
| 礼金 | なし |
| 敷金 | 1ヶ月 |
| 共益費 | 込み |
| 専有面積 | 258.17m² / 78.09坪 |
| 所在地 | 岡谷市長地源2丁目6番44号 |
| 建物名 | 矢崎ビル |
| 交通 | 電車:中央本線下諏訪駅 距離1400m 徒歩20分 自動車5分 電車:中央本線岡谷駅 距離4000m 徒歩60分 自動車15分 高速道路:長野道 岡谷I.C. 車10分 |
| 備考 | 起業法人・個人事業者は連帯保証人又は家賃保証会社との契約が必要です。既存の法人は原則、連帯保証人は不要です。チラシ等に使用している写真は撮影上広角で撮影している場合がございます。ご了承ください。 |
| 建物構造 | 鉄骨造 |
| 建物概要 | 地上3階 |
| 駐車場 | 有 |
| 保険 | 宅建ファミリー共済保険 金額 18500円/2年 |
| 保証金 | なし |
| 契約期間 | 2年 |
| 設備 | トイレ・収納スペース・リフォーム済み・24時間利用可・給湯 |
| 取引態様 | 媒介 |
| 手数料 | 手数料必要 |
| 引渡し/入居日 | 相談 |
| 物件番号 | 451963 |
| 最終更新日 | 2026-04-23 |



























































