検索結果一覧に戻る

住宅用土地 長野県諏訪市大字中洲字中通2978-1 諏訪市大字中洲字中通分譲地(全2区画)  A区画 

  • 価格1287万円
  • 坪単価15万円
  • 土地面積283.67m2
  • 建蔽/容積60%/200%
  • 通学区諏訪市立中洲小学校(650m)
    諏訪市立諏訪南中学校(300m)

最終更新日  2025年09月30日

南面道路接道(間口:10.92m)

全区画
全区画
案内図
案内図
全区画
全区画
区画全体図
区画全体図
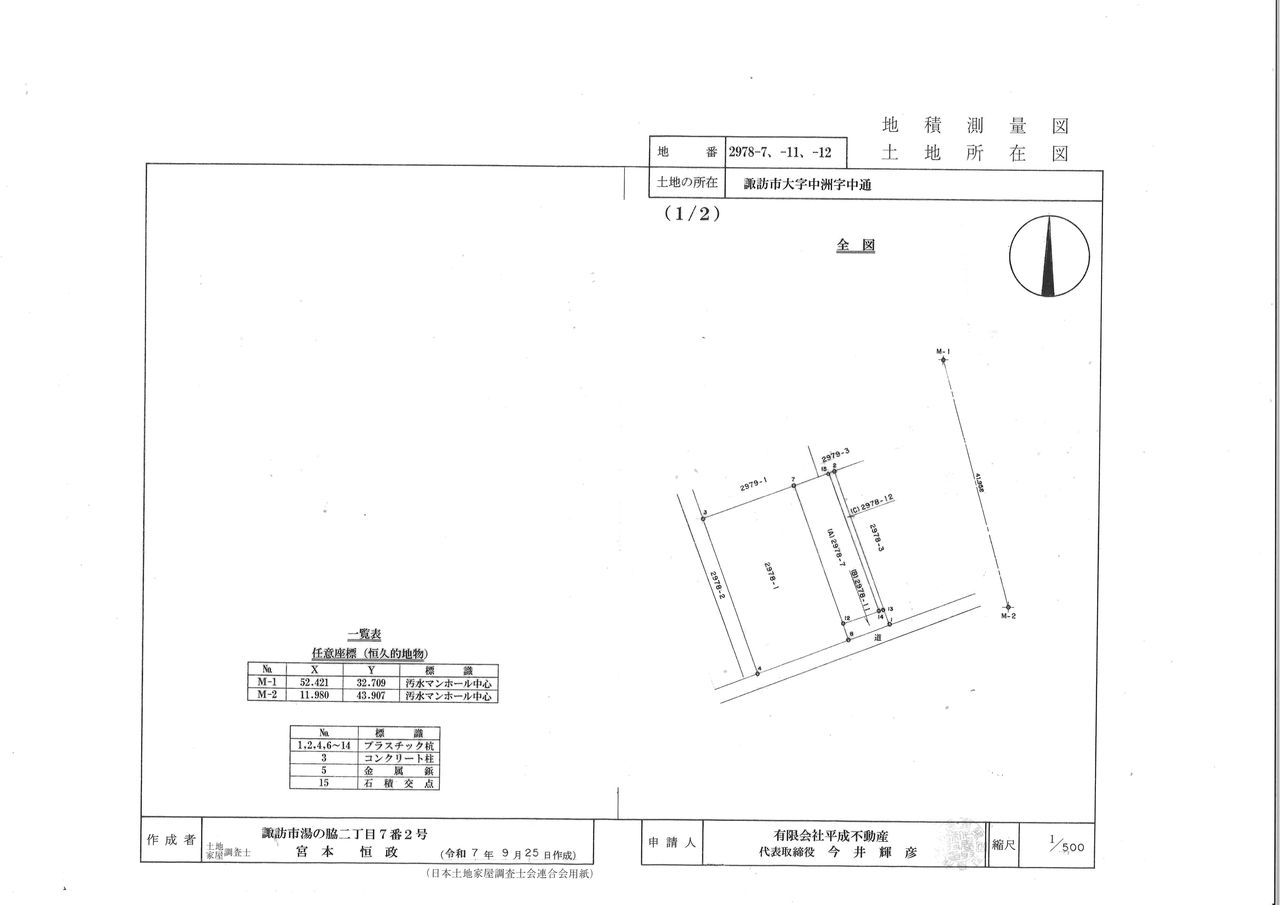
地積測量図1
地積測量図1
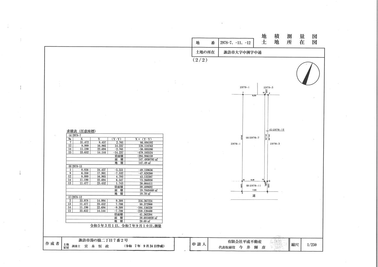
地積測量図2
地積測量図2
地積測量図3
地積測量図3
地積測量図4
地積測量図4
指定道路図
指定道路図
道路証明
道路証明
A区画(手前)
A区画(手前)
A区画(手前)
A区画(手前)
特約条項参考図面
特約条項参考図面
別紙特約条項(地番照合表)
別紙特約条項(地番照合表)
別紙特約条項1
別紙特約条項1
別紙特約条項2
別紙特約条項2
別紙特約条項3
別紙特約条項3
別紙特約条項4
別紙特約条項4
別紙特約条項5
別紙特約条項5
別紙特約条項6
別紙特約条項6
別紙特約条項6参考図面
別紙特約条項6参考図面

地図・周辺環境

Googleマップを開く

※物件位置が表示されていない場合があります。
また特に外部リンク先のGoogleマップでは、実際とは異なる位置が表示される場合があります。
物件の正確な位置は必ず取扱い会社へお問合せください。


中学校
諏訪南中学校
コンビニ
ファミリーマート
銀行
諏訪信用金庫飯島支店
その他
JA信州諏訪中洲支店・給油所
小学校
中洲小学校
その他
諏訪IC
その他
上諏訪駅

物件詳細

価格 1287万円
坪単価 15万円
土地面積 283.67m²(実測) / 85.81坪
所在地 諏訪市大字中洲字中通2978-1
分譲地名 諏訪市大字中洲字中通分譲地(全2区画)
区画番号  A区画 
通学区 諏訪市立中洲小学校(650m)
諏訪市立諏訪南中学校(300m)
交通 電車:中央本線上諏訪駅 距離4600m 徒歩57分 自動車15分
バス:有賀・上社統合路線 バス停諏訪南中学校入口 距離100m 徒歩2分 最寄り駅までバス乗車28分
高速道路:中央道 諏訪I.C. 車4分
都市計画 非線引区域
用途地域 2種中高
地目 宅地
建蔽率 60%
容積率 200%
下水 公共下水道
最適用途 住宅用土地
土地権利 所有権
接道状況 方角:南 道路幅員:2.5m 公私区分:公道 接面:10.92m 位置指定あり
方角:東南 道路幅員:2.8m 公私区分:私道 接面:10.92m
設備 建築条件なし・セットバック済・プロパンガス・上水道・下水道・電気
取引態様 売主
引渡し/入居日 相談
物件番号 413616
最終更新日 2025-09-30
取扱い不動産会社

(有)平成不動産

0266-54-2103

「ココスマを見て」とお伝えいただくと対応がスムーズです

公開物件 17 物件 ※ご覧のココスマサイト内の公開数です
営業時間 9:00~18:00
定休日 日曜日 祝祭日
住所 〒392-0021
長野県諏訪市上川2-2202-1
宅建番号 長野県知事免許(6)第4543号

長野県の不動産一括査定サイト ココスマ不動産売却 加盟会社

不動産のことなら長年の経験と実績の当社へ!

当社は土地(主として住宅用地・農地など)、建物(工場・店舗・居宅・アパート・マンション)の買取り、販売を致しております。無料にて価格査定、迅速に対応致します。お気軽にお問い合わせください。

この物件についてお問い合わせ(無料) ※取り扱い元の会社にメールが届きます

お名前必須
 姓   名
ふりがな必須
せい  めい
電話番号必須
FAX番号

※資料のFAX送付をご希望の場合は必ずご入力下さい。

E-mail必須

お住まい
※資料の郵送をご希望の場合は必ずご入力ください。

郵便番号
都道府県
市区郡町村
町名・番地
建物名等

お問い合わせ内容 必須







ご希望の条件、ご予算、その他質問事項があればご記入下さい

条件が近いほかの不動産情報

(有)平成不動産の不動産情報 一覧を見る  賃貸物件を見る  売買物件を見る


ココスマ不動産売却 あなたの不動産、今いくら?家・土地を売るならまず比較!松本・安曇野・諏訪・伊那・飯田エリアの、査定・売却相談はココスマ不動産売却へ! 長野県の不動産一括査定サイト 利用料無料