住宅用土地 長野県岡谷市田中町1丁目9-20
- 価格1545万円
- 坪単価17万円
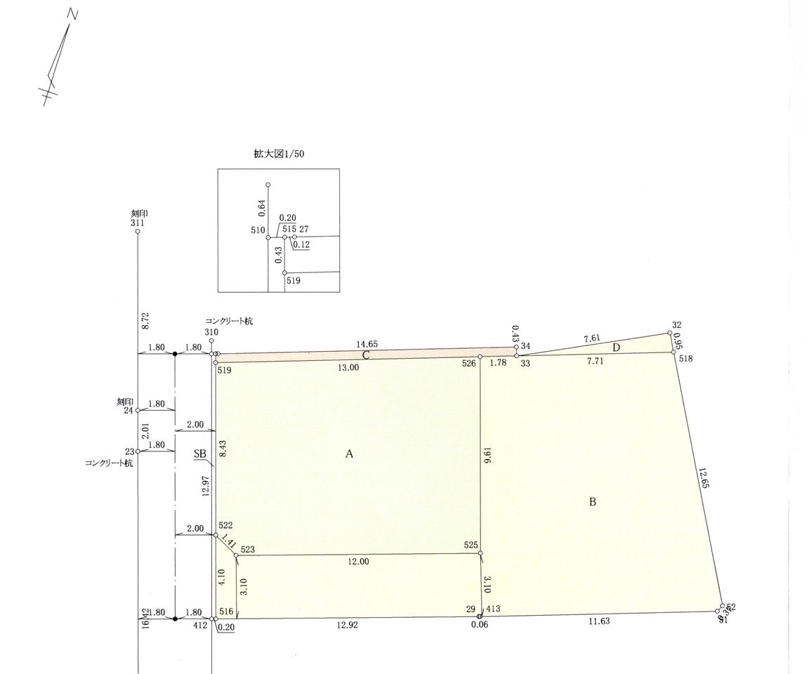
- 土地面積300.47m2
- 建蔽/容積60%/200%
- 通学区岡谷市立岡谷田中小学校(490m)
岡谷市立岡谷南部中学校(1100m)
最終更新日 2026年02月06日
実測なので安心です。安全に学校へ通えます。準防火地域です。道路後退部分は市へ寄付をします。
岡谷不動産商事(有)
0266-22-3296
ココスマを見てとお伝えください
地図・周辺環境
※物件位置が表示されていない場合があります。
また特に外部リンク先のGoogleマップでは、実際とは異なる位置が表示される場合があります。
物件の正確な位置は必ず取扱い会社へお問合せください。
岡谷不動産商事(有)
0266-22-3296
ココスマを見てとお伝えください
物件詳細
| 価格 | 1545万円 |
|---|---|
| 坪単価 | 17万円 |
| 土地面積 | 300.47m²(実測) / 90.89坪 |
| 所在地 | 岡谷市田中町1丁目9-20 |
| 通学区 | 岡谷市立岡谷田中小学校(490m) 岡谷市立岡谷南部中学校(1100m) |
| 交通 | 電車:中央本線岡谷駅 距離900m 高速道路:長野道 岡谷I.C. 車10分 |
| 備考 | 道路後退などの分筆はこれからします。 |
| 都市計画 | 非線引区域 |
| 用途地域 | 1種住居 |
| 地目 | 宅地 |
| 建蔽率 | 60% |
| 容積率 | 200% |
| 下水 | 公共下水道 |
| 最適用途 | 住宅用土地 |
| 土地権利 | 所有権 |
| 接道状況 | 方角:西 道路幅員:4m 公私区分:公道 接面:12.5m |
| 設備 | 建築条件なし・セットバック要・上水道・下水道 |
| 取引態様 | 専任媒介 |
| 手数料 | 手数料必要 |
| 引渡し/入居日 | 相談 |
| 物件番号 | 449886 |
| 最終更新日 | 2026-02-06 |
















