中古住宅 長野県岡谷市長地梨久保2丁目18-11 長地梨久保 パナホームの中古住宅♪ 太陽光発電3kw
- 価格1850万円
- 土地面積178.86m2
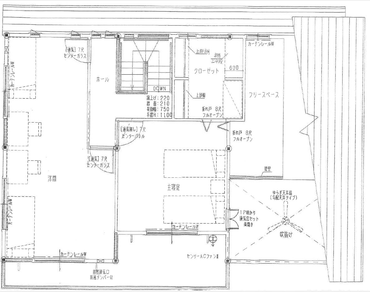
- 間取3SLDK(1階:洋和室、畳エリア、LDK、吹抜け、2階:洋室×2,WIC、書斎)
- 建物面積143.71m2
- 通学区岡谷市立長地小学校(800m)
岡谷市立岡谷東部中学校(1500m)
最終更新日 2026年03月26日
Dの天井は吹抜けになっていて解放感◎Lには畳コーナーも有り、タタミ敷きの洋間と続いているので来客用にも使えそう。2階のユーティリティー書斎かな?広い子供部屋は2分割も出来そう。太陽光3kw発電付きです。
360°パノラマ画像
(株)不動産の相談窓口
担当:一色 直樹
0266-75-8822
ココスマを見てとお伝えください
地図・周辺環境
※物件位置が表示されていない場合があります。
また特に外部リンク先のGoogleマップでは、実際とは異なる位置が表示される場合があります。
物件の正確な位置は必ず取扱い会社へお問合せください。
(株)不動産の相談窓口
担当:一色 直樹
0266-75-8822
ココスマを見てとお伝えください
物件詳細
| 価格 | 1850万円 |
|---|---|
| 土地面積 | 178.86m²(公簿) / 54.1坪 |
| 建物面積 | 143.71m² / 43.47坪 |
| 間取 | 3SLDK(1階:洋和室、畳エリア、LDK、吹抜け、2階:洋室×2,WIC、書斎) |
| 所在地 | 岡谷市長地梨久保2丁目18-11 |
| 建物名 | 長地梨久保 パナホームの中古住宅♪ |
| 部屋番号 | 太陽光発電3kw |
| 通学区 | 岡谷市立長地小学校(800m) 岡谷市立岡谷東部中学校(1500m) |
| 交通 | 電車:中央本線岡谷駅 距離4200m 自動車12分 電車:中央本線下諏訪駅 距離3000m 自動車8分 高速道路:長野道 岡谷I.C. 車6分 |
| 建物構造 | 軽量鉄骨造 |
| 建物概要 | 地上2階 |
| 駐車場 | 有 (縦列で2台分) 台数:2台あり |
| 下水 | 公共下水道 |
| 完成年月日 | 2001年11月 |
| 施工会社 | パナホーム東海 |
| 土地権利 | 所有権 |
| 接道状況 | 方角:東 道路幅員:4m 公私区分:公道 接面:9.25m 方角:北 道路幅員:4m 公私区分:私道 接面:13.3m |
| 設備 | ディンプルキー・バス1坪以上・ウォークインクローゼット・照明器具付き・プロパンガス・上水道・下水道・電気・駐車場2台分 |
| 取引態様 | 一般媒介 |
| 手数料 | 手数料必要 |
| 引渡し/入居日 | 相談 |
| 物件番号 | 448393 |
| 最終更新日 | 2026-03-26 |
































