中古住宅 長野県諏訪郡富士見町落合 富士見町落合 中古住宅 収益物件
- 価格800万円
- 土地面積373.69m2
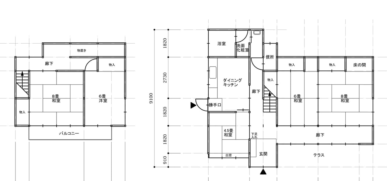
- 間取5DK(DK、和室×4、洋室×1)
- 建物面積147.3m2
- 通学区富士見町立富士見小学校(7400m)
富士見町立富士見中学校(7200m)
最終更新日 2026年04月24日
ハウスドゥ 岡谷
0266-78-6411
ココスマを見てとお伝えください
地図・周辺環境
※物件位置が表示されていない場合があります。
また特に外部リンク先のGoogleマップでは、実際とは異なる位置が表示される場合があります。
物件の正確な位置は必ず取扱い会社へお問合せください。
ハウスドゥ 岡谷
0266-78-6411
ココスマを見てとお伝えください
物件詳細
| 価格 | 800万円 |
|---|---|
| 土地面積 | 373.69m²(公簿) / 113.04坪 |
| 建物面積 | 147.3m² / 44.55坪 |
| 間取 | 5DK(DK、和室×4、洋室×1) |
| 所在地 | 諏訪郡富士見町落合 |
| 建物名 | 富士見町落合 中古住宅 収益物件 |
| 通学区 | 富士見町立富士見小学校(7400m) 富士見町立富士見中学校(7200m) |
| 交通 | 電車:中央本線信濃境駅 距離2900m 徒歩38分 自動車6分 |
| 建物構造 | 木造 |
| 建物概要 | 地上2階 |
| 駐車場 | 有 台数:5台あり |
| 下水 | 簡易水洗 |
| 完成年月日 | 1971年7月 |
| 土地権利 | 所有権 |
| 接道状況 | 方角:南西 道路幅員:3.4m 公私区分:公道 |
| 設備 | BT別室・暖房便座・温水洗浄便座・バルコニー・給湯・照明器具付き・プロパンガス・上水道・電気・駐車場3台分 |
| 取引態様 | 一般媒介 |
| 手数料 | 手数料必要 |
| 引渡し/入居日 | 相談 |
| 物件番号 | 451106 |
| 最終更新日 | 2026-04-24 |





















